Get a Free Property Valuation with FindQo.ie Property Valuation Calculator!

Free Valuation

€null
Site for Sale in Fermoy, Cork
Site for Sale in Fermoy, Cork
Site for Sale in Fermoy, Cork
Site for Sale in Fermoy, Cork
Site for Sale in Fermoy, Cork
Site for Sale in Fermoy, Cork

Site for Sale in Fermoy, Cork – Little William O'Brien Street, Fermoy, Co. Cork

€40000
0.02 acres

Little William O'Brien Street, Fermoy, Co. Cork

Posted 2 months ago
sale-agreed
Available fromFebruary 26, 2026
Seller TypePrivate
LocationLittle William O'Brien Street, Fermoy, Co. Cork

Location

Little William O'Brien Street, Fermoy, Co. Cork

Description

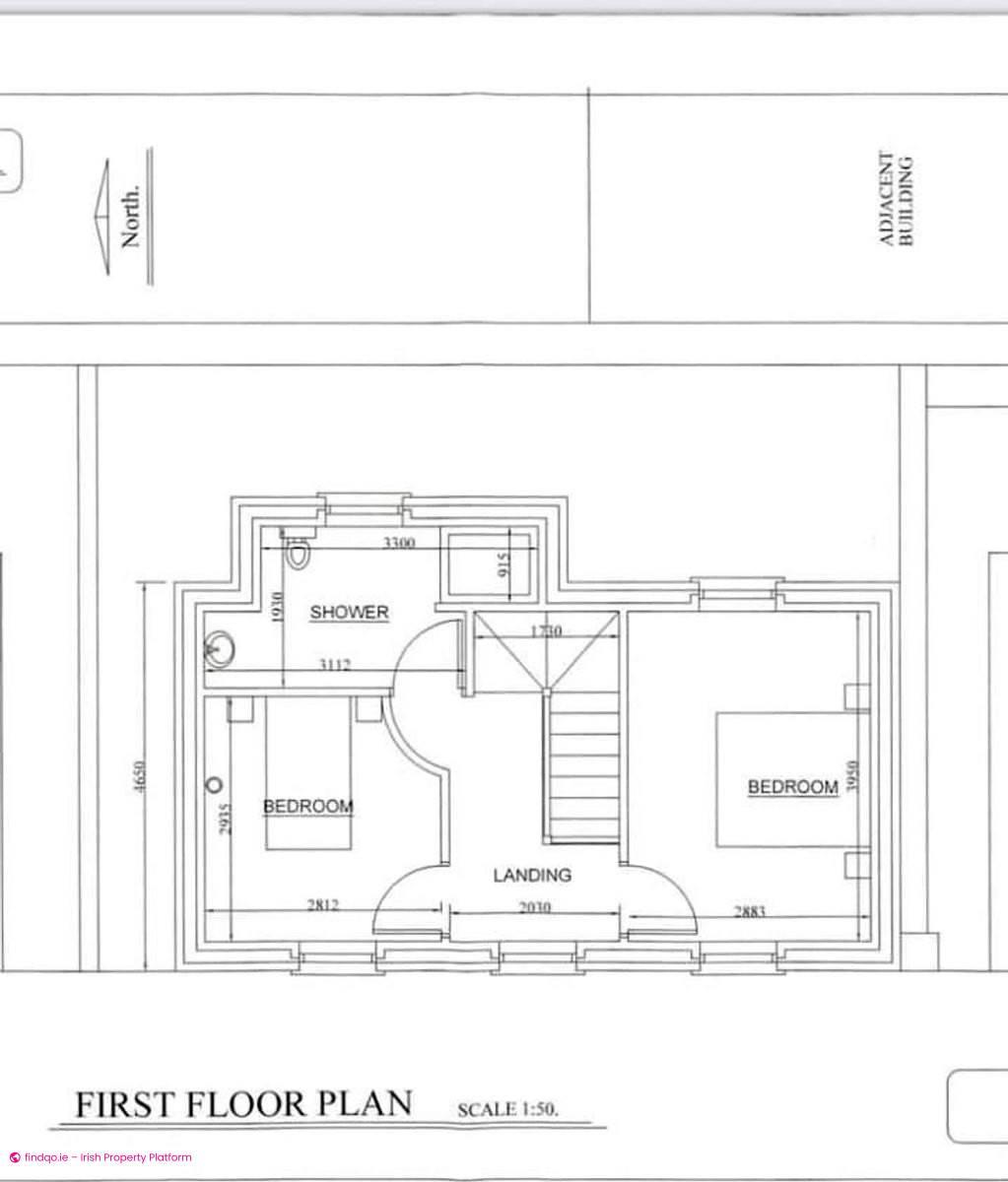
About this property Description SITE WITH FULL PLANNING PERMISSION. This a rare opportunity to acquire a site in this location with Full Planning Permission for a 2-bedroom detached property in the heart of Fermoy Town. The proposed dwelling has has a floor area of 731 square feet (68 m2) over 2 floors, consisting of 2 bedrooms, living room, kitchen, 2 bathrooms and a patio / garden area to the rear. Ground Floor: Entrance Hall. Livingroom: 3.95 m x 2.98 m. Wheelchair Accessible Toilet: 1.54 m x 1.5 m Kitchen/Diningroom: 3.95 m x 2.88 m Patio and Garden Area. 1st Floor: Bedroom 1: 2.81 m x 2.91 m. Bedroom 2: 3.95 m x 2.88 m. Shower Room: 3.3 m x 1.91 m.

Ad ID

8417

Ad views

75

Agent profile photo

Aidan O'Brien

Contact Agent

Seller profile photo

J.J. O’Brien & Son, Auctioneers and Valuers

Real Estate Broker (13 listings)

View all listings